home
about
services
location
contact
     Services
     Features/Accessibility
     Plan Events & Meetings

   Business & Meetings
   Social Events & Weddings
   Schedule a Meeting or Event
   Meeting Space Hilites
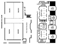
   Floor Plans & Capacity Chart
   Contact Us for Assistance
Floorplans & Capacity Chart >>

Description
Click Here for Data Sheet On Floorplans...

Click Here for Data Sheet On Capacity Chart...